Property Description

Enjoy NO CONDO FEES in this two-story townhouse in Southview with updates. It offers practical living with three bedrooms upstairs, including a primary with a walk-in closet, and a full bathroom. The living room opens to a spacious fenced backyard with no neighbours behind. Notable updates include new shingles (July 2023), a newer rear deck and fence, a newer hot water tank, as well as a replaced front door and kitchen window. Attic insulation was also upgraded to R-540, all completed in 2024. Laundry is conveniently located in the basement, and a concrete driveway completes the setup. Located in a well-established Southview neighbourhood, you’re close to parks, schools, shopping, and local amenities, making everyday life easy and convenient. Contact a real estate agent today to schedule a viewing! (id:21083)

Presenting Realtor

Property Details

Listing ID

A2292931

Property Type

Single Family

Living Area

926 square feet

Lot Size

1,656 square feet

Year Built

1976

Parking

2 Spaces

Property Taxes

$1,359/yr

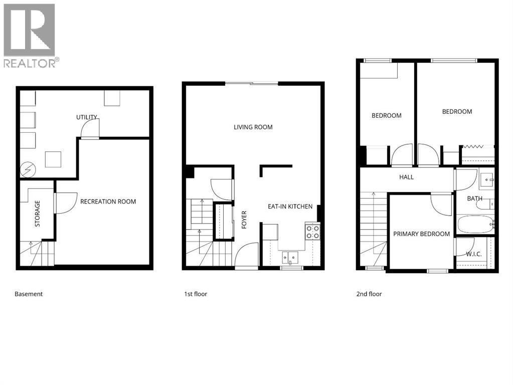
Room Details

Foyer
Level: Main level Dimensions: 12.75 Ft x 3.58 Ft
Living room
Level: Main level Dimensions: 10.00 Ft x 16.92 Ft
Eat in kitchen
Level: Main level Dimensions: 12.75 Ft x 7.67 Ft
Bedroom
Level: Upper Level Dimensions: 12.83 Ft x 6.83 Ft
Bedroom
Level: Upper Level Dimensions: 12.83 Ft x 9.83 Ft
Primary Bedroom
Level: Upper Level Dimensions: 9.33 Ft x 8.00 Ft
Other
Level: Upper Level Dimensions: 4.08 Ft x 4.83 Ft
4pc Bathroom
Level: Upper Level Dimensions: 8.42 Ft x 4.83 Ft
Recreational, Games room
Level: Basement Dimensions: 15.75 Ft x 12.00 Ft
Storage
Level: Basement Dimensions: 7.67 Ft x 4.25 Ft
Furnace
Level: Basement Dimensions: 10.92 Ft x 16.33 Ft

Features & Amenities

Heating & Cooling

Forced air Natural gas Central air conditioning

Appliances

Washer Refrigerator Dryer

Parking

Parking Pad Other Concrete

Exterior

Wood siding

Flooring

Carpeted Vinyl Plank

Basement

Finished Full

Location

📍 Coordinates: 50.0150127, -110.6338849

Open In Google Maps

Similar Properties in Medicine Hat

2% Realty, 100% Canadian Owned and Operated Join the most innovative Realty Network in Canada.